
發布時間:2015-03-30 08:07:34 來源:浩爽 作者:浩爽

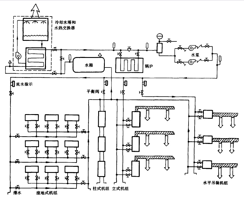
本文標題:冷庫(冷凍冷藏庫)有哪幾種結構
轉載請注明出處:浩爽制冷http://m.whhaiyu.cn/lkzs/1577.html
下一篇:什么是高溫庫、低溫庫和氣調庫?
杭州盒馬鮮生48000立方大型生鮮電商物流冷庫建設方案
京東-灌南冷庫改造采購項目(電商物流園)
170000m3生鮮電商冷庫叮咚買菜冷鏈配送前置倉冷庫項目
江西萍鄉中農批11000平方米農產品物流冷庫工程建造方案
湖南宇培7150㎡冷鏈物流冷藏庫(低溫冷庫)工程案例
深圳望家歡農產品生鮮冷鏈物流配送冷庫建設項目
雅瑪多中國物流大型物流冷庫己完工
海底撈全國各門店中央廚房冷庫建造案例
國藥集團蘭州生物制藥30000m3血液制品冷庫建設精細化方案
上海榮慶物流建造20000立方低溫冷庫工程案例
西郊國際農產品交易中心2500噸大型果蔬冷庫完工
中國供銷啟東農產品國際物流港22600m3冷庫制冷與保溫工程案例
江蘇太倉遠洋物流二氧化碳冷庫工程建造項目
四川遂寧火糊涂匠火鍋餐飲冷凍庫建造工程案例
上海赤坂亭餐飲公司建造1400平方米食品配送冷庫建造案例
上海席永記餐飲的1500立方米餐飲冷藏庫建造案例
廣州薩莉亞餐飲企業-25℃低溫食材存儲冷庫工程案例
北京中央民族大學附屬中學食堂雙溫冷庫建造案例
湖北神地農業的萬平米鮮雞蛋氣調庫建造案例
上海天使之橙2000平米橙子保鮮庫工程建造案例
成都益民生鮮菜市攀成鋼店蔬菜保鮮冷庫工程案例
湖北鮮果園建造氣調保鮮冷庫工程建造案例
周黑鴨食品加工廠大型冷庫工程建造案例
華潤三九藥業1300立方米藥品陰涼冷庫工程設計建造方案
中國醫學科學院醫學生物學研究所昆明創新疫苗冷庫建設方案
國藥蘭州生物制品研究所7000m3生物新冠疫苗冷庫設計建造方案
康樂衛士1300平米生物疫苗制劑車間冷庫設計建造方案
成都生物制品研究所1100立方米狂犬病疫苗冷庫建設精細化方案
山東綠葉制藥6900立方米高架陰涼庫建設方案
成都康諾亞一橋生物科技有限公司醫藥冷庫建設方案
地址:上海市松江區民強路
地址:北京經濟技術開發區
地址:湖北武漢漢陽區
地址:浙江省杭州市江干區
地址:成都市錦江區
地址:烏魯木齊市水磨溝區
地址:江蘇省南京市鼓樓區